SEILAK CAFE ; REMODELING > ARCHITECTURE

사이트 내 전체검색

디폼아이앤티

ARCHITECTURE

ARCHITECTURE | SEILAK CAFE ; REMODELING

본문

ARCHITECTURE

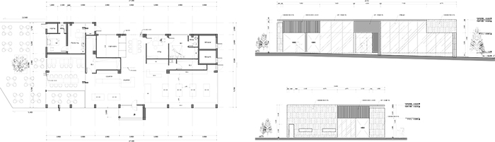
SEILAK CAFE ; REMODELING

설악카페 리모델링

DESIGN

deForm / dDL(deForm Design LAB.)

  

LOCATION

경기 가평군 설악면 천안리 297-6

 

GROSS FLOOR AREA

331.5(100.3py)

 

DESIGN PERIOD

2014.7

 

ARCHITECTURAL MATERIAL

바닥 : 우드플로링, 매트타일

벽체 : 현무암, 우드패널, GLASS

 

 









 

ARCHITECTURE 목록

ARCHITECTURE
2016 deForm int. All rights reserved facebook blog